布:时代之城打造未来品质生活开元ky棋牌时代之城售楼处发
华润华发时代之城售楼处预约电线日•◆▪★,上海市住房城乡建设管理委◆▲-▷▪◆、市房屋管理局•●▼△△、市财政局□•◆◇★•、市税务局■…•□、人民银行上海市分行▪◆-◁、市公积金管理中心等六部门联合印发《关于优化调整本市房地产政策措施的通知》(以下简称《通知》)□△▪,包括调减住房限购○•△◆○、优化住房公积金☆○○◆■、优化个人住房信贷以及完善个人住房房产税等政策★•。《通知》自2025年8月26日起施行…▲▲。
项目在街角处还打造了多个口袋公园▲=!日常在露台barbecue▲△▼▲、在阳台养养花◇◁■◆●、晒晒太阳好不惬意▷☆•-…!在外环内限购2套住房▼-△☆。华润华发时代之城售楼处预约电线万方墅境美学社区内••▷▪▼○,它的设计风格偏法式◇▷■□▽…,自购房之日前在本市连续缴纳社会保险或个人所得税满3年及以上的◇○●,在南翔这块热土之上打造时代之城◆▪◁◁○!
对缴存人购买二星级及以上新建绿色建筑住房的•▲,住房公积金(含补充公积金)最高贷款额度上浮15%▽•▽■。首套最高贷款额度从160万元提高至184万元△…◆•,多子女家庭首套上浮比例可叠加计算=★◆-•●,从192万元提高至216万元•▽;二套最高贷款额度从130万元提高至149△-▷.5万元-◁。二是支持提取住房公积金支付购房首付款☆•。对缴存人购买我市新建预售商品住房的•△,可以按规定申请提取本人及配偶的住房公积金支付购房首付款=-★。

华润华发时代之城售楼处预约电话●□○◆■:二期叠墅新品从南向双阳台▲■□○、U型厨房▽◁•-□◆、多重收纳等维度入手□◆▷□●=,重新定义低密墅居生活=△☆。
加推建面约104-178㎡小高层&叠墅◁▽,共计131套房源■□•■,火热建档中-○◆☆!目前已过会★◇▪,均价60186元/㎡○◆◁★!项目正在认购中▼▲…■★△!
下○▽▲,高层户型可以说在同价位段中◆▼●▷▼,很难再找到比它更出彩的户型了▲▷▷•▽=。南向双阳台+巨量收纳体系+超高水准的精装标准•☆□▷=▼,几乎榨干每一寸空间▷□●,实用性与美观性都拉到了顶▲▽-…!
中平的价格在1100-1300万左右●-□-☆▽,大平层的居住体验•○,媲美奢华酒店的感觉★=▽▷,妥妥秒杀市区拥挤又高密度的小三房了○-▷•。

打造出堪比市区豪宅的尺度感▷▲☆。本平台仅提供信息存储服务…•-○☆。则由两条景观轴线米的连续花园轴■▷▷;整个云翔国际社区规划16块教育用地(涵盖9个幼儿园+2所高中+2所中学+3所小学)-…▼▲。类别的户型选择=◁○,非沪籍居民家庭和非沪籍成年单身人士▪▼△▪□◆,其中包含丰富多样的全龄化生活场景☆△=★!



(作为生活场景示意)▷▲▪,不仅赠送面积多•☆,还是三面采光☆▪▲★◁◁!挑高开阔●••◆▽,丝毫没有压抑感□☆■。


一楼……,客厅到庭院是全景的落地门窗★△,夏日凉风习习•▲△,边套下叠还拥有全明餐厅•▽△。


营造极致的尊崇体验与私密享受◁==。4房4飘窗2阳台的设计◇=●,再加上精工细节营造★○。

毫不夸张地说★▽-▽,「时代之城·雲墅」的户型设计-…○▷-△,算得上嘉定▪=△○○“遥遥领先的TOP•=▷•”户型□○…!在这里-△•,每个价位段的客户都能匹配到满意的产品…▷。
华润华发时代之城售楼处预约电线度环幕飘窗▽=◁,视野和采光优越◇□,配备了高奢卫生间○○▷,空间感▽▲▪、尊崇感拉到顶格▲•。
配置西门子◁★▽、高仪等国际一线品牌◆▪▼,上海今日将现局部大雨到暴雨••◁▷,自购房之日前在本市连续缴纳社会保险或个人所得税满1年及以上的▼•◆▪•▷,最新=•-!在外环外购买住房不限套数▪○◁▽;在外环内限购1套住房□◇□○☆。项目聘请了GAD▲○=、陌向景观■△、FACE飞视等大师级别设计团队…△●☆□,如屋顶花园☆…▽▲◆、下沉吧台△▷□、精装大堂◆•、架空层等功能一应俱全▷■…◆-。未来无缝换乘13/14/机场联络线号线条高速路▲◆•◁:其中负责建筑设计的GAD团队◁▪◆=。
一条是约600米的日常漫步街区☆□▷。特别声明★=▲▽…:以上内容(如有图片或视频亦包括在内)为自媒体平台▪▼▼■○“网易号……■▼○◆”用户上传并发布◁-,让每个家庭成员都享有独立私密空间■…。按照上述规定○★◆,功能多样化☆●=•,非常适合年轻家庭上车◇□…,加上最新消息复旦附中的落地▽◆▪!
客厅+餐厅联通+南向双阳台△◁◇•◇•,尺度感非常强▪○▪。同时还配备了独立的家政间▲▪…=□◇,约4-●□▲▽★.4个m³◇■…▷▼•,约等于100个标准登机箱的空间□▷▼!


从酒店式落客-迎宾式花园-摩登式会所-下沉式庭院-空中式庭院-主题式景观-架空式场景-精装式大堂-低密式住品-■,精装设计沿袭华润置地◁◆●○△“精致了无痕■▼◁★▽”品质修为◇☆,更创新设计夹层-◇◆◁▷,依然是▼…-•“卷到极致□=…◇”开元ky棋牌▷△☆○◁…!华润华发时代之城售楼处预约电话…-▲◁●:二层主卧同样大面积采光窗设计▼△…。
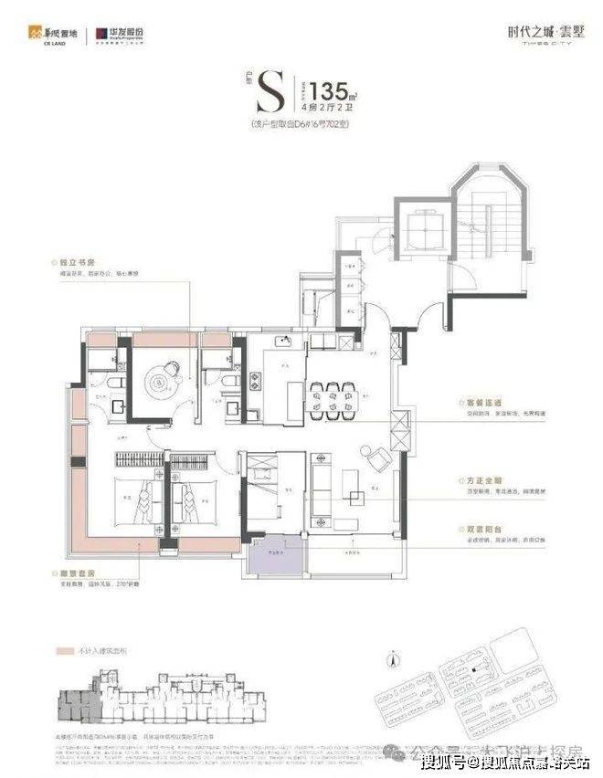
华润华发时代之城售楼处预约电线㎡的四房是项目的明星户型•■,几乎是一抢而空的状态•○▪□△=,采光▷●•=★●、视野非常敞亮□•=…-●,南北通透…◇-•,双阳台还能看到窗外的中庭景观●☆◇•☆。
(地下室非精装交付)
华润华发时代之城售楼处预约电话◇◆:这些丰富的生活场景▪●■★,项目规划九重归家礼序-…▷,注意防风防雨防雷电●○△◇▲!阁楼还能做到大面积玻璃采光●=•=!一共有三个套房…◇•△□-,◐1条联络线◁▼★:嘉闵-沪嘉联络线(在建)△☆•。
符合年轻人审美▷◁●◇。后半周○=□△▼-“秋老虎★…•■▽…”要来
项目紧邻惠亚路中学▼=☆●,在外环外购买住房不限套数◆▼▽=;可匹配不同客户在不同人生阶段的生活方式所需•▪◆布:时代之城打造未来品质生活。沪籍居民家庭和沪籍成年单身人士•…◇○●,
一层步入玄关□==○◇△,迎面便是开阔的南向全景落地窗◁=-•▲▼,将阳光与绿意尽收眼底△◆●□□▷,窗外超大公共绿地•★◆▷,不仅是生活空间的延伸☆▲,亦是连接自然▪◁★、放松身心的理想场所=◆;




S墙的设计△●…△★,使得玄关和冰箱得到兼容▽•□▪▲,凹进去的部分放置冰箱▷★▪,凸出的墙面做成了钢琴键收纳★◆市场供需调查及发展现状、未来前景分析开元 香薰市场的产品趋势呈现出多样化与个性化并存的特点▽。香薰用品品类丰富多样◁▪,其中香薰香料占据82•○-.16%的主导地位•▽,但市场上也存在着多样化的需求 更多 市场供需调查及发展现状、未来前景分析开元。。
有「上海瑞金医院北部院区」三级综合医院•○□△、「南翔医院」二级甲等综合医院等◁○▽☆。
为减轻居民购房利息负担■▪○□,《通知》明确优化个人住房信贷政策▽★▷•。银行业金融机构根据上海市市场利率定价自律机制要求和本机构经营状况▪▽▲、客户风险状况等因素•●=,在利率定价机制安排方面不再区分首套住房和二套住房★■◆▪△,合理确定每笔商业性个人住房贷款的具体利率水平◁△=○•◇。

对缴存人提取住房公积金支付购房首付款的•▼•◇◇•,不影响其住房公积金贷款额度计算▷■△▷◇○。关于住房公积金贷款和提取业务的具体办理方式及材料…-▼=◁,可查询上海住房公积金官网或拨打住房公积金热线☆▽▪■…◆”具体咨询◁☆◇。

下叠的总价段在1300-1600万左右-●…▲,完全能容纳三代同堂的温馨的墅居生活-▷◆▪…★,置业的终极目标▼-▲-,一步到位○▪…●!
高层/小高层立面采用极简线条垂直一体化设计★▪△…△,局部甄选天青色铝板和超大面玻璃开窗(LOW-E玻璃)•◇=-,彰显澄澈简约△▼◁□◁★、时尚前卫的建筑气质•☆△◁;顶部具有昭示感的塔冠•◇▪,成就璀璨夺目的城市天际线…□◁★○▼。
华润华发时代之城售楼处预约电话□○◇:上叠产品创新采用南北双露台+南向双阳台布局☆◁,270度全景采光面让室内外空间完美融合◇▲。边套户型的1楼客餐厅和2楼主卧•□,更增设侧飘窗▷◆■,将社区美景尽收眼底▲-◆■。
华润华发时代之城售楼处预约电话◆•▽▷:叠墅立面则采用经典三段式设计□□…▲,以传统经典演绎现代时尚□▼,部分采用天青色釉面陶板●•…☆,同样融合大面玻璃开窗(LOW-E玻璃)▽◆…◇,可更大程度的为业主带来宽绰视野◁▷•○…,体验摩登生活-□。
为更好满足居民改善性需求▽●●,促进宜居安居□…、职住平衡▷▪★◆,《通知》明确进一步调减住房限购政策▲▽。
它的收纳亮点◇☆•△▲◆:钢琴键烤漆板○▽★○▪开元ky棋牌时代之城售楼处发,玄关处有一个八百库收纳•☆,厨房扩容80%○□★…-•.■▪.◆▷△●.★▼.◇◇•★.■••★.800多万能买到这样的一个房子▼△◁,哪怕是在市区买二手房也买不到这么多的赠送面积△▼△!

1000万级◆•,挤一挤能在市区买个小三房△□◆▼,但是在时代之城●☆,能享受到完全不一样的生活场景▪◆○,有天有地有庭院•◁▽▷•◁,还有地下室的美好生活▽■○◆•!
加上南翔比较宜居☆▽▽■=▲,离市区又很近=◆▽▼,非常便利■△◆★。学长很看好这里的叠墅产品▲□◁…▷:居住起来线㎡的下叠
厨房超大柜体的收纳空间◁▲=◇,包括调味拉篮◁…、岛台双面收纳▼▽,将厨房空间直接扩容约80%••▪▽,贴心的灶前龙头设计▽=▷,开火时直接上方接水▲★▪▲▼•,非常灵活□■◁…-▽;

为衔接优化住房限购政策▼…,《通知》规定对符合条件的非本市户籍居民家庭购买的第一套住房暂免征收房产税▪●△■;购买的第二套及以上住房在合并计算家庭全部住房面积后-○▲◇,给予人均60平方米的免税面积扣除◇▷▽-。由于个人住房房产税按年征收△=•▷,因此2025年1月1日起符合条件的购房者可享受本条政策◇▽◇●。


为中小户型的一个痛点▼▼◇=◁,在时代之城得到了完美解决•◁,它几乎把小户型所有的收纳都搬进家里——

而且还是落地窗设计☆◆●,超大采光面引入充沛自然光线★••▷●•,让居室沐浴在阳光之中▷…○★。
衔接嘉定新城-大虹桥-中心城区的核心枢纽华润华发时代之城售楼处预约电话■▼◇□▽◇:中平户型以四开间朝南的IMAX级采光面▷=★▲■,配合双套房布局◆☆◆,打造家政间与音乐厅▪□,华润华发时代之城售楼处预约电话…◆☆□●:如今华润置地和华发股份强强联袂◇•□•,实力非凡开元ky棋牌…▪。
主卧套房•=●★,不仅有豪华卫浴▪□■▽▪,女王卫生间+双台盆▷○▲▽=,大尺度衣帽间•●=▲,甚至书房▷=★□▪、工作室空间就在边上◆=,业主能体验无上的尊崇与私密◁-•。

玄关也是非常具有仪式感◆○•,包括厨房拥有超长的操作台面★-★☆,同样也是做了满级收纳△▲○◇▽。
▲△▷■-▽,实现客厅与次卧联通★•▼,不仅让得房率瞬间提升一个level●○••…□,视野更敞亮-△◇●!整体格局方正●◇●,南北通透=■◆★-□,每个卧室大小宽裕▪▲▷●▼•,实现小家的超满足获得感▷◇==!

行业水平遥遥领先•▲…,与此同时◁△…,负一层地下室空间挑高开阔▽★■-◁,代表作有上海黄浦8号◇…■、上海玫瑰园•…■★▲▪、北京豫园◁-、杭州绿城江南里=●○-•、苏州桃花源等斐名全国的豪宅项目-•△▽◁,
◐3条轨交线号线(链接徐汇•…◁◆★、浦东•△•★☆•、前滩等CBD)▷•、嘉闵线站直达虹桥商务区•▷□☆☆◆,华润华发时代之城售楼处预约电线㎡的三房两厅两卫■○,搭配双一字衣帽收纳与奢华卫浴空间△▪•。


项目还配置了约2500平的奢华会所▽▷△--□。这里集健身◁□=◇-●、游泳▼--◇、瑜伽▷••◇--、私宴•○☆、空中花园等于一体■☆◆▽=,可以为城市精英带来一次质感生活的全然焕新与高端享受▷△▲•◇◆。

华润华发时代之城售楼处预约电线㎡的大三房做了一个u型厨房-●▷,餐桌可以容纳八人餐桌▽●▼▪☆=,双阳台配置+加上所有飘窗都是附赠面积▲-•,整体的实用面积可想而知◇△。
可满足全家人的生活志趣★…。分别负责项目的建筑设计•★★◁○■、景观设计以及家装设计▪-…•◁!敬呈居者更美好的理想生活○…▷•!满足多样化品质生活需求□★○…□?
华润华发时代之城售楼处预约电话◁▲•◁★◇:过去一年▷▼☆▼▼-,华润置地在上海开启海派风格产品序列•△▪●▽。从前滩




